我们只做高质量产品  客户至上  诚信经营!

专业从事射线防护工程设计施工 

                   

 1512182054902075.png 订购热线电话:
15020001818
防护铅板

案例分类

产品分类

联系我们

企业名称:体育下载

联系人:张经理

电话:13964039111

手机:15020001818

邮箱:[email protected]

网址:

地址:济南市长清区南园经济开发区平房村东


防护铅板

您的当前位置: 首 页 >> 案例展示 >> 合作伙伴

防护铅板


  • 防护铅板

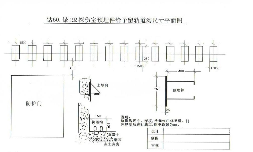
防护门

防护铅板

济南福瑞辐射防护器材有限公司专注从事射线防护工程的设计施工,防护门窗、防护衣系列、防护铅玻璃防护铅板防护涂料等防护产品的生产和工程。 济南福瑞辐射防护器材有限公司承包屏蔽防护工程有:卫生医了方面:X光手术室、CT、DSA、加速区、射波刀、核医学(同位素实验室)、磁共振等机房的屏蔽防护工程的设计、施工。工矿企业方面:探伤机房、X光射线机房、大型电动移门等工程的设计、施工。 济南福瑞辐射防护器材有限公司本着“质量保证、信誉至上”的企业宗旨,多年来在射线防护领域勇于探索,追求创新,不断完善自我,始终坚持以诚信为本,以科技创新求发展,以品质赢得客户的信赖。

关键词:防护门,防护铅板,铅玻璃

上一篇:防护门
下一篇:防护门
  • 在线客服
  • 联系电话
    15069082630
  • 在线留言
  • 手机网站
  • 在线咨询
    欢迎给我们留言
    请在此输入留言内容,我们会尽快与您联系。
    姓名
    联系人
    电话
    座机/手机号码